Historic House Close To Bellagio
Галерея
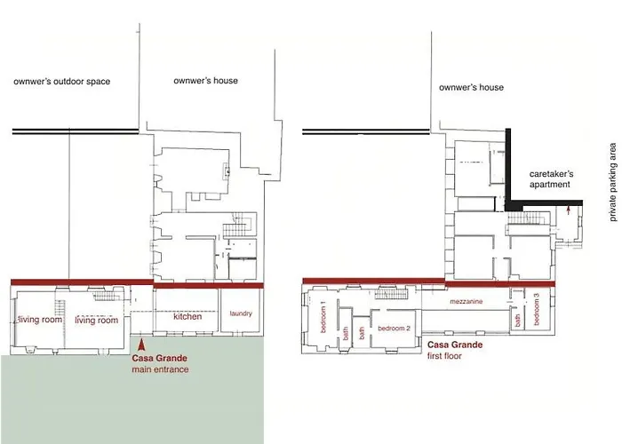
Preview only — see all hotel photos
See all 24 photos 1 /
24
Best options for your travel dates
Отель на карте
Historic House Close To Bellagio
Во время пребывания в вилле Historic House Close To Bellagio гости могут заняться пешими прогулками или посетить Канатный парк Jungle Raider, в 14 минутах ходьбы.
Кастелло-ди-Льерна находится примерно в 6 км, а такие культурные достопримечательности, как Мадонна дель Гизалло, расположены менее чем в 1 км от дома отдыха. Близлежащие религиозные достопримечательности включают Базилику Сан-Джакомо, примерно в 15 минутах езды.
Гости могут насладиться ужином в ресторане Il Ghisallino, на расстоянии 1 км. Также всего в 10 минутах ходьбы находится автобусная остановка Strada della Vallassina - Strada per il Pian Rancio.
Подробнее +
Скрыть -
Подождите, пожалуйста, мы ищем доступные номера для вас.
Поиск отелей
Услуги
Основные удобства
- Платный Wi-Fi
- Занятия спортом
- Домашние животные запрещены
Удобства
Описание:
- Курение на территории запрещено
- Платный Wi-Fi
- Парковка
- Домашние животные запрещены
- Детекторы дыма
- Огнетушители
Спорт и отдых:
- Пляжные зонтики
- Сад
- Принадлежности для барбекю
- Пешие прогулки
Удобства в номере:
- Отопление
- Садовая мебель
- Настольные игры
Правила проживания
Регистрация заезда: с 15:00 до 23:59
Регистрация выезда: до 10:00
Номер лицензииIT013250C2CXIN2OXB